60 Summit (Lot 24) Crescent Belleville, Ontario K8N 0A2

3 Bedroom 2 Bathroom 1,100 - 1,500 ft2
Raised Bungalow Central Air Conditioning Forced Air

$649,000

Welcome to Highpoint Village, where modern comfort meets community charm! Built by BrauerHomes, this thoughtfully designed MOIRA Model sits on a peaceful crescent just steps from parks, schools, and the Quinte Sports & Wellness Centre. Inside, 9-foot ceilings and an open-concept layout create a spacious, inviting atmosphere. The sleek kitchen with a large island flows effortlessly into the bright living area, perfect for gatherings. The main-floor primary suite offers a walk-in closet and private ensuite, while the main-floor laundry adds everyday convenience. With a sodded lot, stone walkway, customizable finishes, and an optional finished basement, this home blends style, function, and value in one beautiful package. Don't miss your opportunity to live beautifully in a growing community. Contact the listing agent for full details today. (id:29295)

Property Details

MLS® Number X12501970
Property Type Single Family
Community Name Belleville Ward
Amenities Near By Public Transit, Park
Community Features Community Centre, School Bus
Equipment Type Water Heater - Tankless, Water Heater
Features Sump Pump
Parking Space Total 4
Rental Equipment Type Water Heater - Tankless, Water Heater
Structure Porch

Building

Bathroom Total 2
Bedrooms Above Ground 3
Bedrooms Total 3
Age New Building
Appliances Water Heater - Tankless
Architectural Style Raised Bungalow
Basement Type Full
Construction Style Attachment Detached
Cooling Type Central Air Conditioning
Exterior Finish Vinyl Siding, Brick
Foundation Type Poured Concrete
Heating Fuel Natural Gas
Heating Type Forced Air
Stories Total 1
Size Interior 1,100 - 1,500 Ft2
Type House
Utility Water Municipal Water

Parking

Attached Garage
Garage

Land

Acreage No
Land Amenities Public Transit, Park
Sewer Sanitary Sewer
Size Depth 101 Ft ,6 In
Size Frontage 49 Ft ,1 In
Size Irregular 49.1 X 101.5 Ft
Size Total Text 49.1 X 101.5 Ft|under 1/2 Acre
Zoning Description R

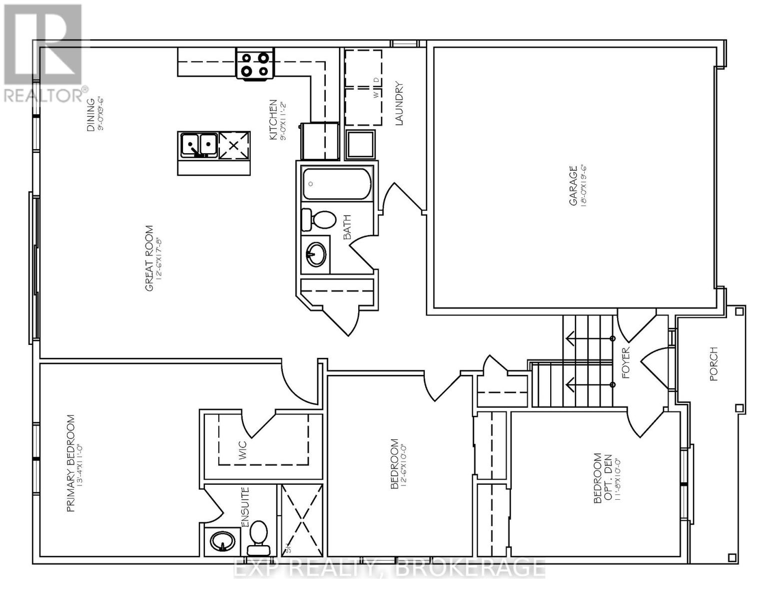
Rooms

Level Type Dimensions
Main Level Kitchen 2.74 m x 3.4 m
Main Level Dining Room 2.74 m x 2.9 m
Main Level Great Room 3.81 m x 5.39 m
Main Level Primary Bedroom 4.06 m x 3.35 m
Main Level Bedroom 2 3.81 m x 3.05 m
Main Level Bedroom 3 3.56 m x 3.05 m

Utilities

Cable Available
Electricity Installed
Sewer Installed

https://www.realtor.ca/real-estate/29059281/60-summit-lot-24-crescent-belleville-belleville-ward-belleville-ward

Brandon Nadeau
Salesperson

(613) 449-5112
brandonnadeau.exprealty.com/
www.instagram.com/brandonnadeau_exp/

Exp Realty, Brokerage
225-427 Princess St
Kingston, Ontario K7L 5S9

(866) 530-7737
www.exprealty.ca/

Denver Fisken
Salesperson

(613) 920-4146
mcintyrecogroup.com/

Exp Realty

(866) 530-7737
exprealty.ca/